Leider ist keine Anmeldung mehr möglich.
Aufgrund der zahlreichen Vormerkungen ist eine Anmeldung für diese Wohnung leider nicht mehr möglich!
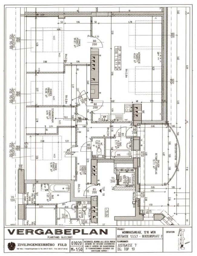
Justgasse
Justgasse 7/DG/19, 1210 Wien
Die Wohnung hat eine Größe von 110,66,00 m² und besteht aus
Vorzimmer, Wohnküche, 3 Zimmer, Schrankraum, Badezimmer, WC und einen Balkon mit 13,11 m².
4. Stock im Dachgeschoss, Aufzug vorhanden
Die Wohnung hat eine Größe von 110,66,00 m² und besteht aus
Vorzimmer, Wohnküche, 3 Zimmer, Schrankraum, Badezimmer, WC und einen Balkon mit 13,11 m².
Einkommensüberprüfung vor Neuvermietung.
Die Wohnung kann ab sofort unbefristet angemietet werden.
Alle Angaben ohne Gewähr.
| Vorzimmer: | 11,70 m² |
| Wohnküche: | 40,63 m² |
| Zimmer: | 19,81 m² |
| Zimmer: | 13,28 m² |
| Zimmer: | 13,99 m² |
| Schrankraum: | 6,94 m² |
| Badezimmer: | 3,11 m² |
| WC: | 1,20 m² |
| Balkon: | 13,11 m² |
| Miete (Stand Dez. 2024) | € ca. 1200,00 inkl. BK und Ust., exkl. Heizung, Strom |
| Kaution | € 7.100,00 |
Downloads
Wohnungsplan Öffnet in einem neuen Tab
JPG, 121 KB
Energieausweis Öffnet in einem neuen Tab
PDF, 669 KB